La Ponce, terrains à vendre à Revel
25 lots en libre choix de constructeur selon disponibilités
Bienvenue sur le lotissement de La Ponce.
Les parcelles ont été pensées et aménagées afin de garantir aux futurs acquéreurs une exposition optimale en accord avec les dernières préconisations énergétiques.
Situé en plein cœur de Revel, à seulement 40 min de Toulouse le lotissement vous garantira un cadre de vie de qualité grâce à ses nombreuses structures : crèches, écoles (dont L'orée de Vaure à 2mn), collège, clubs sportifs, nombreuses associations, hôpital, médecins ainsi qu'une zone commerciale et industrielle.
Vous pourrez également profiter d'un centre-ville animé sans oublier le célèbre marché de Revel autour du superbe beffroi !
Si vous êtes adeptes d'espaces verts vous pourrez également apprécier les abords du lac de St Ferréol (pique-nique, base nautique, restaurants...) ou encore aller vous promener ou randonner dans la Montagne Noire, et profiter des voies vertes que la Communauté de communes est en train de développer, notamment en bordure du lotissement.
C'est le cadre idéal pour la détente et les loisirs !
Nos disponibilités
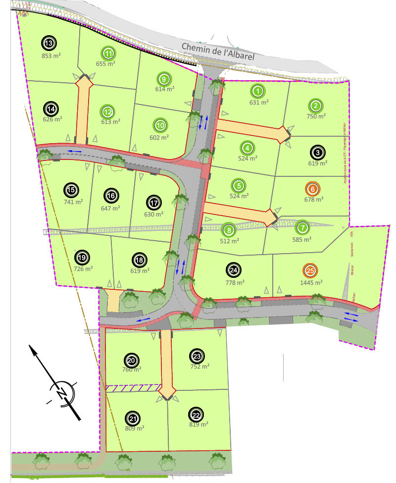
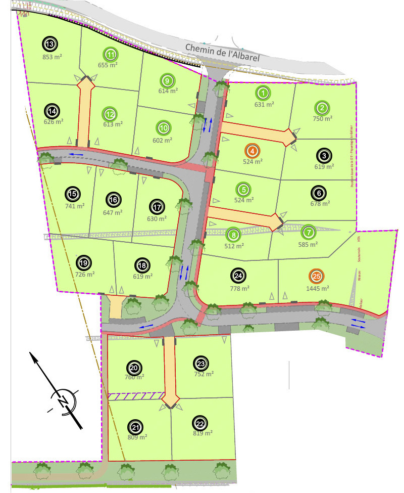
Pointer la parcelle qui vous intéresse sur la carte ci-dessous pour afficher sa disponibilité, sa surface et son prix.
Cliquer sur le lot pour afficher son plan de vente et de bornage provisoire.
Parcelle disponible
Parcelle réservée
Parcelle vendue ou sous compromis
Les tarifs
Tableau récapitulatif des différentes parcelles, leur surface, leur prix et leur disponibilité.
vente
vente
Compléments d'informations
Documents importants
Le prix ne comprend pas
- Les frais de notaire
- La caution équipements communs : 750 €
- Création association syndicale : 50 €
- Les taxes du permis de construire : TAP, PAC
- TA (3.5% part communale, 1.3% part départementale, 0,40% part archéologique
- PFAC : 3 pièces : 3 700 €, 4 pièces : 4 600€
Professionnels associés à l'opération
Notaire
Maitre Vivien Bouissou
78 avenue du Maréchal Foch - 81200 MAZAMET
Tél : 05 63 61 82 15
Géomètre
VALORIS
3 avenue des Frères Arnaud - 31250 REVEL
Tél : 05 62 18 71 30
Situation géographique
Idéalement placé dans Revel, en Haute-Garonne, à la limite du Tarn, à seulement 1 heure du centre de Toulouse, 30 minutes de Toulouse ou bien à 10 minutes du magnifique lac de Saint-Ferréol, les terrains de la Ponce proposent une situation idéale pour la création de votre maison.
Nous contacter
Vous avez des questions ou désirez plus de précisions sur un des lots en vente ? Un besoin d'informations plus précises que vous ne trouvez pas sur le site ?
Vous pouvez nous contacter soit par téléphone :
soit par email :



